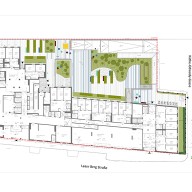
MySky - Wohnhausanlage Monte Laa 5 | 1100 Wien

Ein Garten für Pioniere. Familien beziehen die neuen Wohnungen, Studenten/Studentinnen werden in den untersten drei Geschoßen wohnen. Sie alle sind neu im Haus, sollen sich hier wohl fühlen und nach und nach „Wurzeln schlagen“.
Im Freiraum wird dieses Pionier-Leben thematisiert:
Zahlreiche Beete bieten die Möglichkeit, sich gärtnerisch zu betätigen und Beerensträucher, Kräuter oder Zierpflanzen anzubauen, die ebenfalls langsam ein buntes Bild im Garten entstehen lassen. Im Randbereich wachsen Pionier-Bäume, schnellwachsende Birken, dicht gepflanzt, die auf einem Extremstandort wie der Tiefgaragendecke in wenigen Jahren ein kleines „Wäldchen“ bilden werden. Diese Fläche ist begehbar, zwischen den Stämmen kann gespielt werden. Der Garten im Freiraum soll pflegeleicht sein: Rasenflächen sind keine vorhanden, die Hochbeete werden zur zum Teil vorbepflanzt und automatisch bewässert. Die übrigen Pflanzbeete in der Anlage sind mit trockenheitsverträglichen Gräsern und Stauden / Kräutern bepflanzt, die auch heiße Sommer überstehen.

Das Garten-Design orientiert sich am Bild des Schrebergartens, der nicht zuletzt nach dem 2. Weltkrieg in großen Teilen des 10. Bezirks zu finden war. Früher jedoch vordringlich zur Nahrungsproduktion angelegt, bietet der pionier-Garten heute Platz für „urban gardening“, ein zeitgemäßes Konzept städtischer Freiraumplanung.

Diese Website verwendet Cookies. Wenn Sie diese Website nutzen, ohne die Cookie-Einstellungen Ihres Browsers zu ändern oder hier einen Opt-Out-Cookie zu setzen, stimmen Sie der Verwendung von Cookies zu. Nähere Informationen zum Datenschutz.×